Make a Call : +8615559090996
Get A Estimate : senko@fjsenko.com
MỘTdây chuyền sản xuất gạch ốp tường và gạch lát sàn với giá đỡ gạch thép là một tổ hợp thiết bị tự động được sử dụng trong sản xuất gạch ốp tường và gạch lát nền. Thiết bị này cho phép vận hành liên tục quy trình sản xuất, bao gồm một loạt các bước từ đặt gạch, vận chuyển, bảo dưỡng, xử lý đến đóng gói thành phẩm, giúp cải thiện hiệu quả sản xuất và chất lượng sản phẩm. Bằng cách thiết lập cơ chế bảo dưỡng, thiết bị không chỉ sử dụng động cơ băng tải để vận chuyển gạch ốp tường và gạch lát nền mà còn sử dụng bơm nước bên ngoài được kết nối với nguồn nước bảo dưỡng và vòi phun bảo dưỡng để bảo dưỡng gạch. Máy thổi khí được trang bị cánh quạt khí giúp nhanh chóng loại bỏ nước khỏi bề mặt gạch.
Dây chuyền sản xuất gạch ốp tường và sàn với giá đỡ gạch thép(Người mẫu:QDZX-2000)
Dây chuyền sản xuất gạch hoàn toàn tự động, dây chuyền sản xuất gạch ốp tường và gạch lát nền.
Bố cục của các dự án:
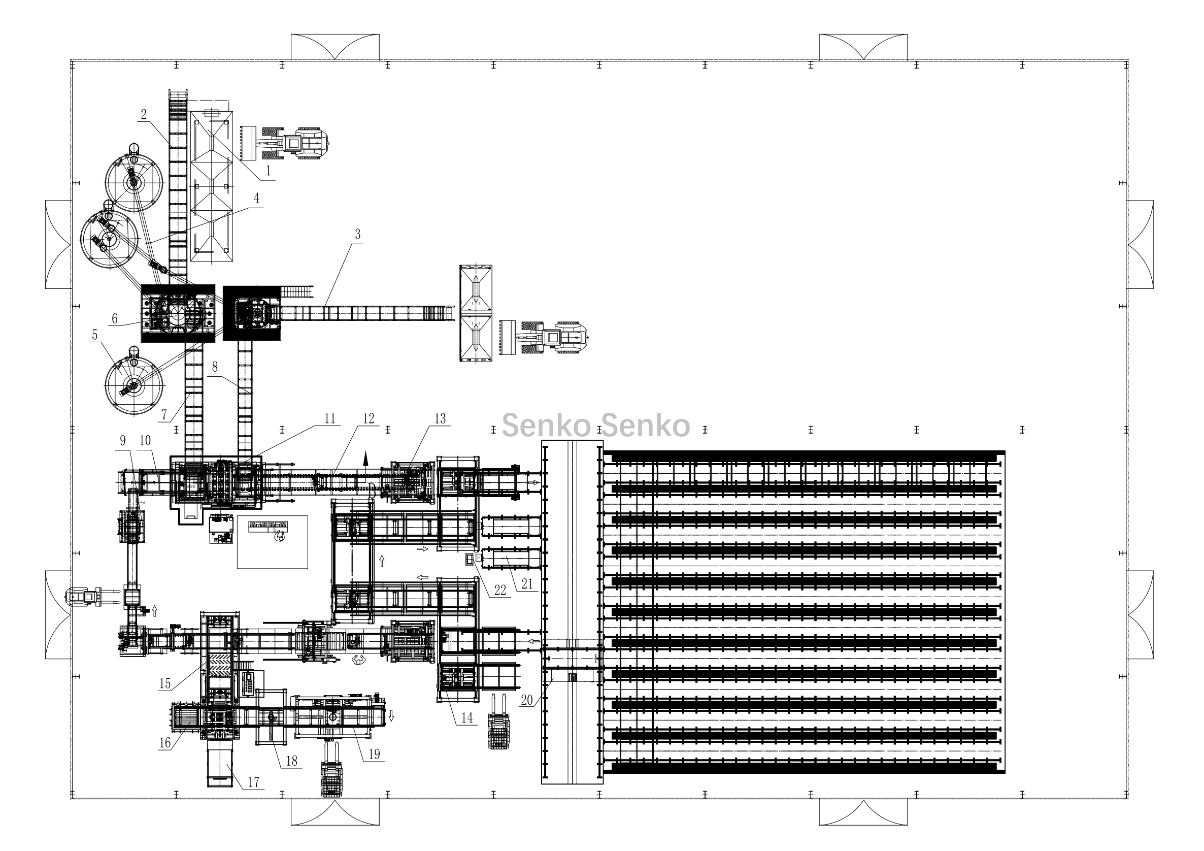
Giải pháp một: Lò nung chỉ có một mặt mở và hướng về phía phần còn lại của máy.

| 1, Máy định lượng | 2, Băng tải vật liệu cơ bản | 3, Băng tải vật liệu cơ bản | 4, Băng tải xoắn ốc | 5, Băng tải xoắn ốc | 6, Máy trộn |
| 7, Băng tải vật liệu cơ bản | 8, Băng tải vật liệu cơ bản | 9, Máy nạp pallet thủy lực | 10, Máy nạp pallet | 11, Máy tạo hình khối | 12, Băng tải khối |
| 13, Xe nâng pallet | 14, Chuyển giá đỡ | 15, Máy xếp khối | 16, Khay gỗ đựng đồ | 17, Máy đóng gói màng phim | 18, Máy nằm phim |
| 19, Máy tách quay trên | 20,RGV | 21, Xe đẩy hàng | 22, Trạm sạc |
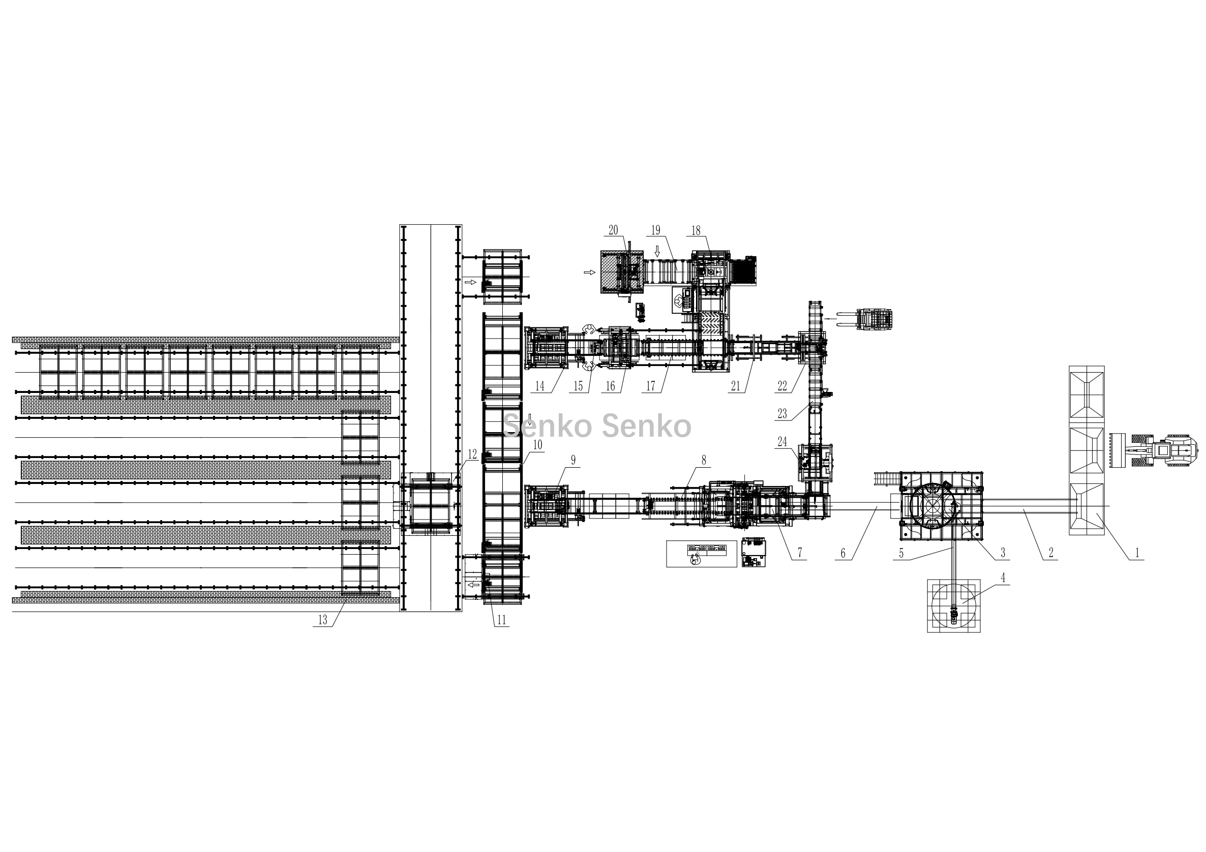
Giải pháp thứ hai:Lò nung chỉ có một mặt mở và hướng về phía phần còn lại của máy.

| 1, Máy định lượng | 2, Băng tải vật liệu cơ bản | 3, Máy trộn | 4,Silo xi măng | 5, Băng tải xi măng | 6, Băng tải hỗn hợp |
| 7, Máy tạo hình | 8, Băng tải pallet | 9, Xếp pallet vào giá đỡ | 10, chuyển giá đỡ | 11, giá đỡ cho ăn trên RGV | 12, Xe đẩy chuyển hàng RGV |
| 13, Lò nung khối | 14, Dỡ pallet khỏi giá đỡ | 15, Băng tải trước khi nâng | 16, Nâng pallet | 17, Máy tách khối và pallet | 18, Máy xếp khối |
| 19, Băng tải xếp chồng | 20, Máy bóc bao bì | 21, Băng tải pallet rỗng | 22, Máy xếp pallet | 23, Băng tải xếp pallet | 24, Tải pallet |
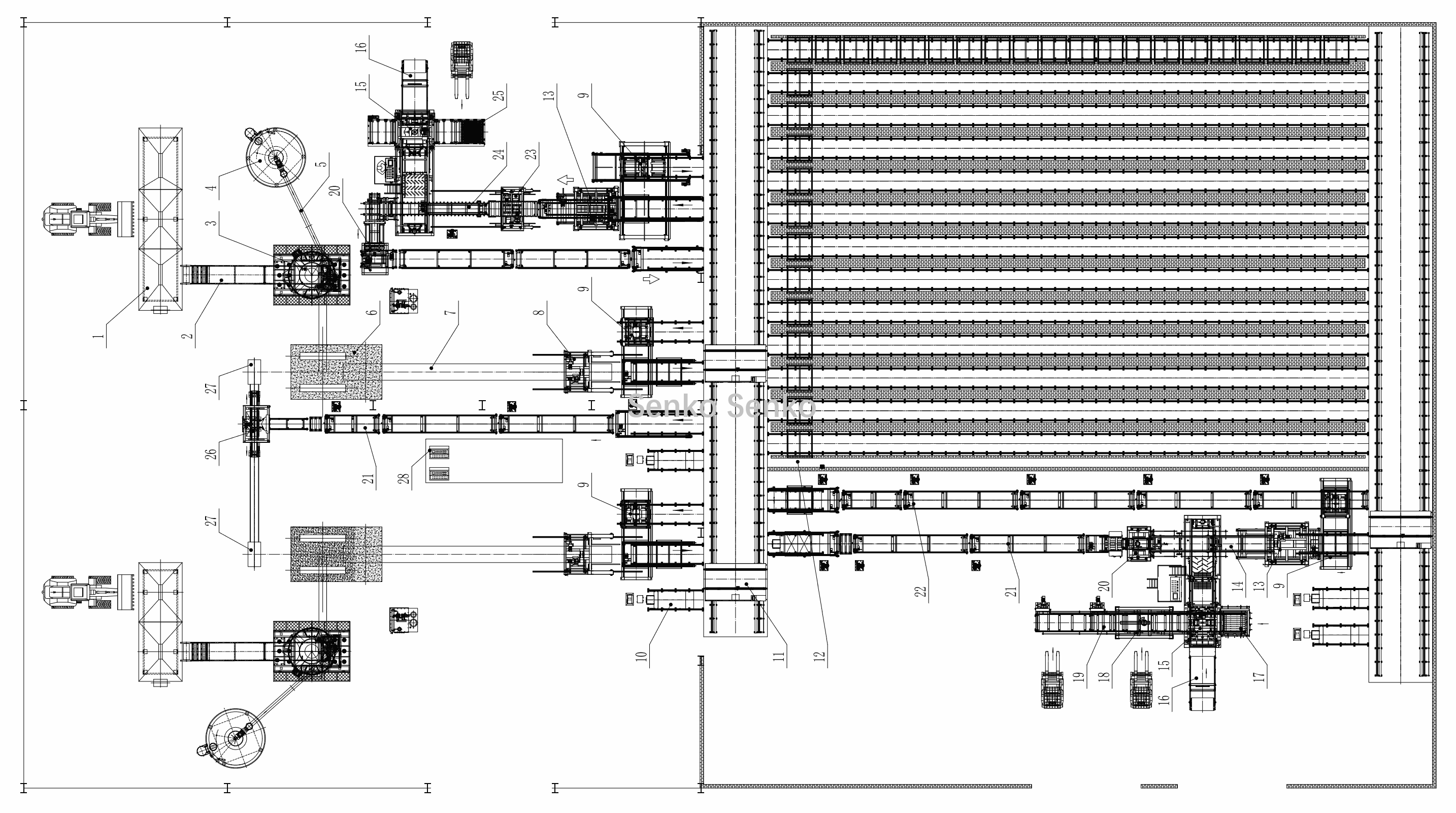
Giải pháp thứ ba: Một lò nung với hai bộ máy định hình và đóng gói cho các loại sản phẩm khác nhau.

| 1, Máy trộn | 2, Băng tải vật liệu cơ bản | 3, Máy trộn | 4, Silo xi măng | 5, Băng tải xoắn ốc | 6, Máy tạo hình |
| 7, Băng tải pallet gạch | 8, Đưa pallet vào giá đỡ | 9, Đơn vị chuyển giá đỡ | 10, Xe đẩy hàng | 11,RGV | 12, Lò nung |
| 13, Lấy pallet ra khỏi giá đỡ | 14, Máy tách gạch và pallet | 15, Xếp gạch | 16, Máy cán màng | 17, Khung lưu trữ khay | 18, Đơn vị đóng gói phim |
| 19, Máy tước | 20, Máy xếp pallet rỗng | 21, Băng tải xếp pallet | 22, Băng tải giá đỡ rỗng | 23, Thang nâng pallet gạch | 24, Băng tải pallet gạch |
| 25, Máy tước | 26, Pallet đưa vào dây chuyền | 27, Khung lưu trữ pallet |
Ưu điểm của sản phẩm:
1. Nâng cao hiệu quả sản xuất: Quy trình sản xuất tự động hóa giúp giảm thiểu sự can thiệp thủ công và cường độ lao động, cho phép sản xuất liên tục và hiệu quả, giúp tăng đáng kể sản lượng gạch ốp tường và gạch lát sàn;
2. Đảm bảo chất lượng sản phẩm: Kiểm soát quá trình tải, vận chuyển và xử lý gạch chính xác, cũng như môi trường bảo dưỡng ổn định, giúp đảm bảo các chỉ số chất lượng của gạch ốp tường và gạch lát sàn, chẳng hạn như độ chính xác về kích thước, độ phẳng và độ bền, đồng thời giảm tỷ lệ lỗi.
3. Giảm chi phí sản xuất: Mặc dù đầu tư vào thiết bị lớn nhưng về lâu dài, có thể giảm hiệu quả chi phí sản xuất trên một đơn vị sản phẩm bằng cách cải thiện hiệu quả sản xuất và giảm chi phí lao động cũng như lãng phí nguyên liệu thô;
4. Cải thiện an toàn sản xuất: Giảm sự tiếp xúc trực tiếp giữa con người và các quy trình sản xuất nguy hiểm như nhiệt độ cao và vận hành tốc độ cao, giảm tỷ lệ tai nạn lao động và cải thiện độ an toàn của quy trình sản xuất.
Các tình huống ứng dụng

THẺ :