Make a Call : +8615559090996
Get A Estimate : senko@fjsenko.com
MỘTdây chuyền sản xuất gạch chất thải rắn là hệ thống chuyển đổi chất thải rắn thành gạch xây dựng. Hệ thống sử dụng công nghệ rung điều biến biên độ, tần số để đạt được mật độ cao và tiết kiệm năng lượng trong sản xuất gạch tái chế không nung. Máy sản xuất gạch phế thải của chúng tôi có thể sản xuất nhiều loại gạch tái chế không nung khác nhau và có thể đúc theo yêu cầu.
Dây chuyền sản xuất gạch/khối thải rắn (Người mẫu:GFZX-2000)
Dây chuyền sản xuất gạch hoàn toàn tự động, dây chuyền sản xuất gạch thải rắn, dây chuyền sản xuất gạch thải rắn xây dựng.
Bố cục của dự án:
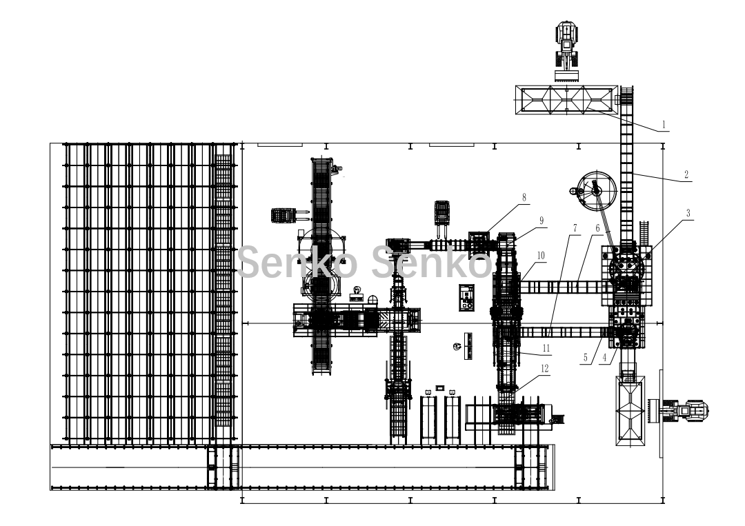
Giải pháp một: Tlò nung có một mặt mở và song song với các thiết bị khác

| 1, Máy định lượng | 2, Băng tải vật liệu thô | 3, Máy trộn vật liệu cơ bản | 4, Máy trộn bột màu | 5, Màn hình rung | 6, Băng tải hỗn hợp cơ sở |
| 7, Băng tải hỗn hợp bột màu | 8, Tải pallet | 9, Máy nạp pallet | 10, Máy tạo hình | 11, Băng tải | 12, Máy xếp chồng |
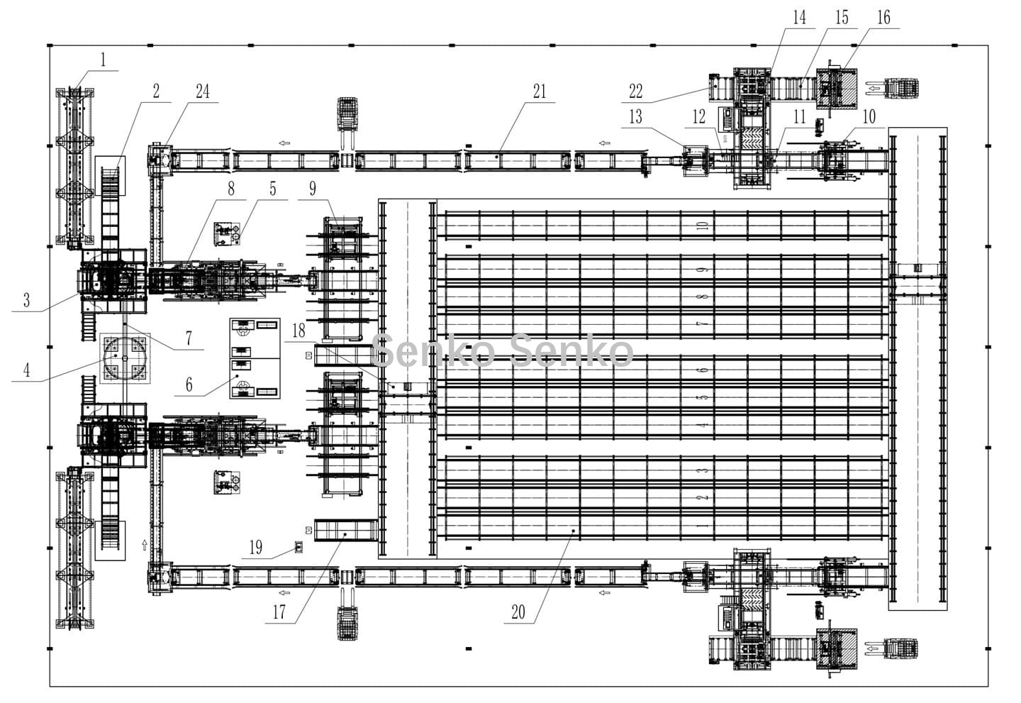
Giải pháp thứ hai: Lò nung có lối vào và lối ra. Lối vào của lò nung hướng về phía các máy còn lại.

| 1, Máy định lượng | 2, Băng tải vật liệu cơ bản | 3, Máy trộn | 4, Silo xi măng | 5, Bồn chứa dầu |
| 6, Tủ điều khiển điện tử | 7, Băng tải xoắn ốc | 8, Máy tạo hình | 9, Máy xếp pallet bằng gạch | 10, Nâng pallet |
| 11, Máy tách pallet gạch | 12, Băng tải pallet rỗng | 13, Máy xếp pallet không có gạch | 14, Máy xếp gạch | 15, Băng tải xếp chồng |
| 16, Máy tách quay dưới | 17, Xe chuyển hàng | 18,RGV | 19, Trạm sạc | 20, Lò nung |
| 21, Hệ thống tái chế pallet rỗng | 22, Giá để khay | 24, Tải pallet thủy lực |
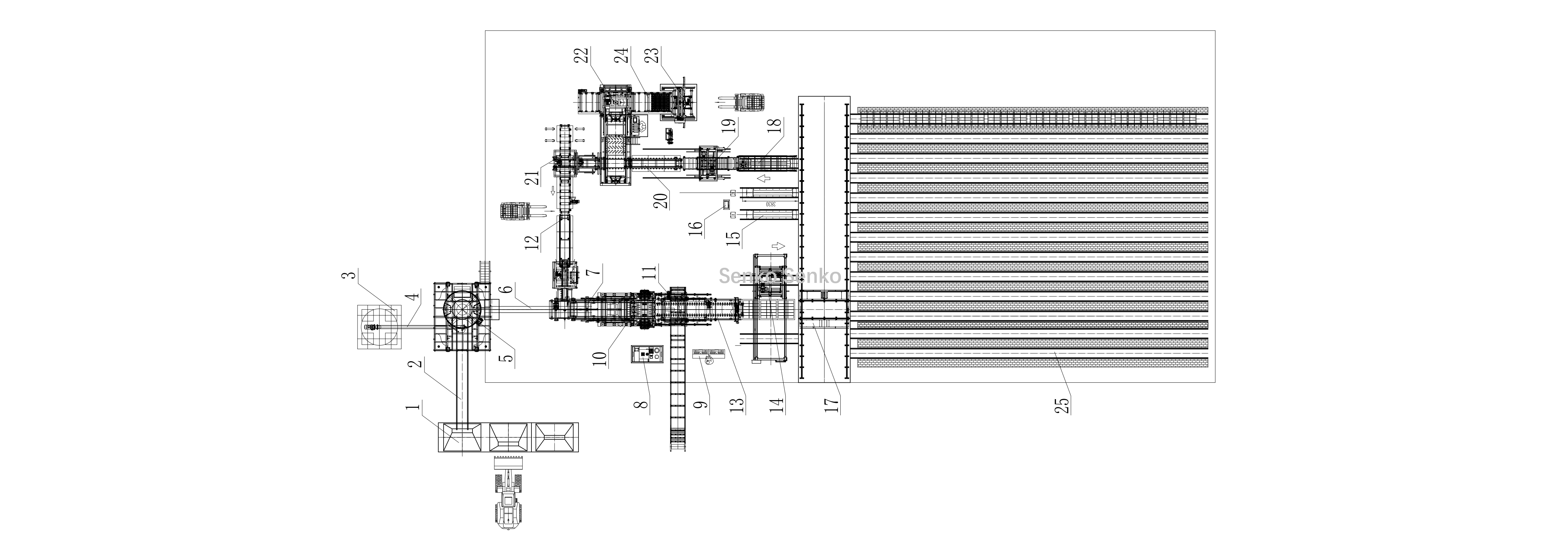
Giải pháp thứ ba:TLò nung có một mặt mở và hướng về phía các máy còn lại.

| 1, Máy trộn | 2, Băng tải vật liệu cơ bản | 3, Bồn chứa vật liệu cơ bản | 4, Băng tải xoắn ốc | 5, Máy trộn vật liệu cơ bản |
| 6, Băng tải hỗn hợp Bas | 7, Tải pallet | 8, Trạm thủy lực | 9, Hệ thống điều khiển điện tử | 10, Máy nạp pallet |
| 11, Máy tạo hình | 12, Tái chế pallet | 13, Chuyển pallet | 14, Máy xếp pallet | 15, xe đẩy chuyển hàng |
| 16, Trạm sạc | 17, RGV | 18, Băng tải xếp pallet | 19, Nâng pallet | 20, Băng tải gạch Pallet |
| 21, Máy xếp pallet | 22, Máy xếp gạch | 23, Đóng gói quay dưới | 24, Băng tải xếp chồng | 25, Lò nung |
Ưu điểm của sản phẩm:
1. Nguyên liệu thô rẻ, sẵn có và chi phí vận chuyển thấp. Máy làm gạch tương đối rẻ và được chính sách quốc gia hỗ trợ, mang lại lợi ích kinh tế và xã hội đáng kể.
2. Gạch sản xuất có cường độ cao và hiệu suất tốt, tiết kiệm hiệu quả tài nguyên đất và thúc đẩy việc điều chỉnh cấu trúc ngành vật liệu tường xây dựng.
Các tình huống ứng dụng

THẺ :